
Expert Technical Design
Freelance technical design support for high-end retail and design-led interiors

Delivering Excellence
My work sits between creative intent and physical delivery - resolving complex designs into robust technical details suitable for manufacture and installation.
I work directly with Brands, Design Agencies and Shopfitters - providing technical clarity, consistency and confidence across a wide range of retail, hospitality and corporate projects.

Project Focused
I bring clarity and consistency to the most complex projects with the ability to think creatively and analytically with excellent communication skills and an expert knowledge of a wide variety of materials and processes.
Technical Design Services
Collaborating with client teams to transform concepts into reality

Design Development
With a Masters Degree in Design, I have a genuine affinity for the design intent and enjoy working closely with design stakeholders to faithfully interpret the concept.

Production Details
I utilise a variety of tools (sketching, CAD, prototypes) to problem solve at speed and a level of detail required by the project at any given time.

Design Management
Drawing on extensive experience with Main Contractors, I expertly orchestrate the setout of multiple trades to ensure the faithful delivery of the design vision.

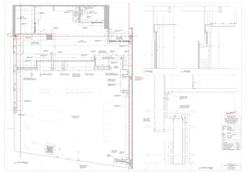
Technical Documentation
Design intents are resolved into clear, concise drawing packs to support the design development process, production, construction and installation teams.
Typical projects
For Brands, Designers & Shopfitters
Client list
Just a few of the Brands I have worked with over the years...
Retail
Harrods, Selfridges, Mulberry, Tom Ford, Charlotte Tilbury, Dior, Bobbi Brown, Kilian, Jo Malone, Nespresso, Holland & Barrett, Morrisons, Pret A Manger, Vodafone, Marks & Spencer, Simply Be, Fraser Hart, American Express, Roadchef, Travelex, Next
Corporate & Hospitality
Eurostar St Pancras, Brighton & Hove Albion FC, Clays, Hilton, LTA Wimbledon, Rio Tinto, EA Games, Hodder Headline, Sony, EMI Music
About me

Jon Lewis
I am a technical designer with over 25 years' experience developing concept designs into clear, buildable and commercially viable solutions for premium retail brands and high-end commercial interiors.
Get in Touch
Please don't hesitate to get in touch if you have a project you want to discuss...









